Osborne House:
The Royal Love Story on the Isle of Wight

By Kitt Garrett

Photo credit: English Heritage

Photo credit: English Heritage

Kitt Garrett, an American storyteller who loves the UK, uncovers England’s history, art & architecture—sharing its hidden stories of the people who lived there and the visitors who marvel at its history.

Kitt Garrett, an American storyteller who loves the UK, uncovers England’s history, art & architecture—sharing its hidden stories of the people who lived there and the visitors who marvel at its history.

Photo credit: Isle of Wight, The Solent water passage between the Isle of Wight and England, Google maps.

Photo credit: Isle of Wight, The Solent water passage between the Isle of Wight and England, Google maps.

It began as a true love story — a royal partnership built on devotion, ambition, and shared purpose. When Queen Victoria married Prince Albert, the young couple inherited three royal residences. Yet despite their grandeur, none provided the comfort, seclusion, or family-friendly atmosphere they longed for to raise their nine children.

Their solution was to create a peaceful, private refuge on the Isle of Wight, and be only three and half hours from London by rail to Gosport’s Royal Victoria Station, where she transfered to the royal yacht for the Solent crossing to Osborne. Today, the same trip today takes four and a half hours due to the increased traffic.

You can explore this seaside sanctuary and include some of their cost-saving design elements in your own home.

Victoria, niece of King William IV, and heir to the British throne, grew up at Kensington Palace and was educated in English, French, and Italian.

She was the daughter of the German-born Princess Victoria of Saxe-Coburg-Saalfeld. Her mother’s household staff often spoke to her in German. In her early childhood, she spoke German more fluently than English.

By the time she became queen in 1837 at the age 18, English was her dominant language. She still spoke German throughout her life, especially with her husband Prince Albert of Saxe-Coburg and Gotha, since he was from a German ducal family.

Photo credit: Kitt Garrett, Kensington Palace, where Victoria lived with her mother until she was 18 and became Queen.

Photo credit: Kitt Garrett, Kensington Palace, where Victoria lived with her mother until she was 18 and became Queen.

Photo credit: The Real History, History Extra.

Photo credit: The Real History, History Extra.

Queen Victoria and Prince Albert were married on 10 February 1840 at the Chapel Royal, St James’s Palace in London. She was 20 years old and Prince Albert was 21 years old .

When they married in 1840, they had three residences in which to live in England: Windsor Castle, Buckingham Palace, and the Royal Pavillion at Brighton, the fantastical seaside palace created by her uncle, King George IV, and access to their official residence of Holyrood House in Scotland.

Brighton had become increasingly crowded, with curious visitors pressing up to the windows of the Royal Pavilion to catch a glimpse inside. Seeking greater privacy and open space for their growing family, Queen Victoria sold the Brighton property and used the proceeds to help finance a new home. In 1845, she and Prince Albert purchased an estate on the Isle of Wight for £28,000—equivalent to over £3.6 million today—creating a secluded royal retreat by the sea.

Photo credit: Royal Collection Trust, Old Osborne House main front dated 1844 was owned by Lady Isabella Blanchford.

Photo credit: Royal Collection Trust, Old Osborne House main front dated 1844 was owned by Lady Isabella Blanchford.

The Old Osborne House which stood on the property was owned by Lady Isabella Blanchford. Queen Victoria had spent time in the home when she was growing up and loved the setting. Since the Blanchrod house was too small for their family, it was demolished to make way for their new family home.

Photo credit: Royal Collection, Osborne House, The Royal Family on terrace at Osborne 26 - 26 May 1857 Photograph of The Royal Family on the terrace at Osborne. From left to right: Prince Alfred, Princess Alice, Princess Helena, Prince Leopold, Prince Albert, the Queen holding Princess Beatrice, Prince Arthur, Princess Royal, Prince of Wales and Princess Louise. Statue of Urania in alcove in the background.

Photo credit: Royal Collection, Osborne House, The Royal Family on terrace at Osborne 26 - 26 May 1857 Photograph of The Royal Family on the terrace at Osborne. From left to right: Prince Alfred, Princess Alice, Princess Helena, Prince Leopold, Prince Albert, the Queen holding Princess Beatrice, Prince Arthur, Princess Royal, Prince of Wales and Princess Louise. Statue of Urania in alcove in the background.

Queen Victoria wrote "It is impossible to imagine a prettier spot -- we have a charming beach quite to ourselves -- we can walk anywhere without being followed or mobbed." She referred to the location as this ‘Little Paradise’ by the Sea, and it would become her family’s home rather than a royal residence for their nine children.

Situated on the Isle of Wight, Osborne House remains one of Britain’s most significant royal residences, offering glimpses into the private life of Queen Victoria and Prince Albert, and the lifestyle of their growing family.

According to the Osborne Guidebook, Osborne would allow Albert to pursue some of his many passions, including estate management, agricultural improvement, building, landscape design, gardening and education.

Victoria's journal in 1848 referred to him as 'Albert the Creator'.

At their family home, they loved being together and sharing their love of country, family and each other. The construction project unfolded in true “work-in-progress” fashion.

The image below is from 1855. The family home grew larger with additions allowing Queen Victoria to be with her family and carry out her monarchial duties.

Photo credit: Royal Collection, Osborne House 1855 Attributed to Roger Fenton (1819-69).

Photo credit: Royal Collection, Osborne House 1855 Attributed to Roger Fenton (1819-69).

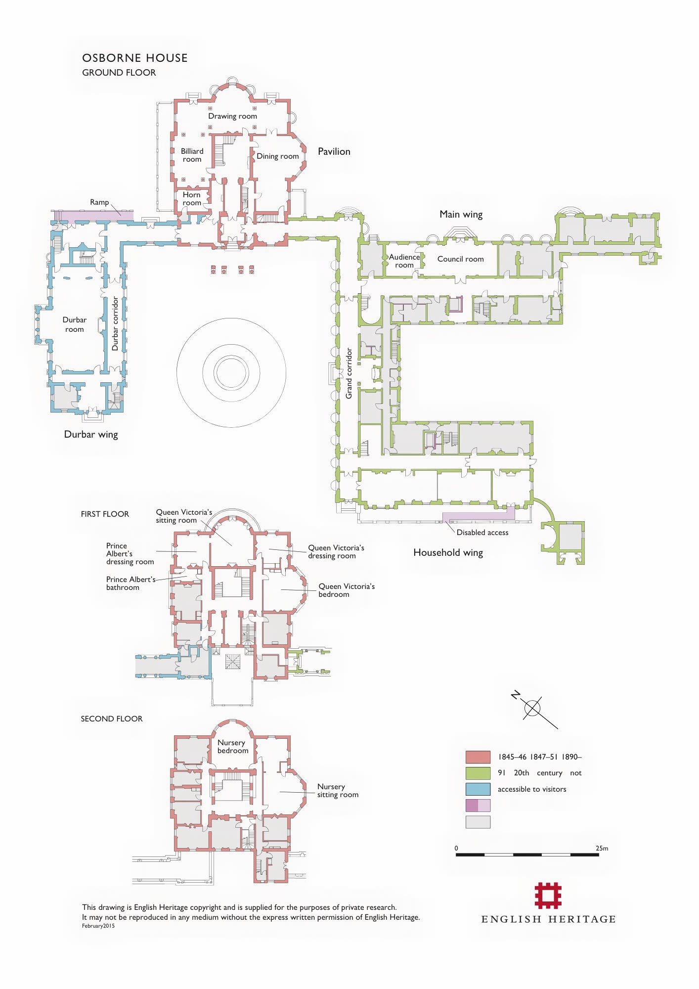
The main house, known as The Pavilion, was built in 1846 to house the family's private apartments. Carl Raymond, from the Gilded Gentleman interviewed Dr. Christopher Warleigh-Lack, curator at English Heritage in a podcast on 6 August 2024 describing the compactness of their private home, while still functioning as a palace. The large function rooms are on the ground floor. A suite of rooms for Queen Victoria and Albert are on the first floor and the nursery suite on the second floor.

Photo credit: English Heritage Osborne House Guidebook detailing the room layouts of the home.

Photo credit: English Heritage Osborne House Guidebook detailing the room layouts of the home.

Two additonal wings were added, the green wing for the main household, and last, the exotic Durbar Wing in blue for formal entertaining.

Phased Osborn House plan: English Heritage.

Phased Osborn House plan: English Heritage.

Prince Albert worked closely with architect and builder Thomas Cubitt to demolish the existing building on the property and create their new home.

Photo credit: Thomas Cubbit, 1788 - 1855, © National Portrait Gallery, London, unknown artist.

Photo credit: Thomas Cubbit, 1788 - 1855, © National Portrait Gallery, London, unknown artist.

According to room attendant Lee, who preferred we use his first name: “Prince Albert loved the Italian design which he had seen in his travels in Italy. This water colour painting hangs in the hallway outside their bedroom. Look closely and you’ll see honey-coloured stone buildings with two towers which may have been the inspiration for the design of Osborne House".

Photo credit: Kitt Garrett, English Heritage, Osborne House.

Photo credit: Kitt Garrett, English Heritage, Osborne House.

Drawing from Victoria’s Duchy of Lancaster income, Albert’s marriage allowance, the couple dipped into their own private purses and family savings rather than securing funding by Parliament or taxpayers.

That meant working within a budget, but Victoria and Albert were reluctant to sacrifice style. Albert had spent time in Italy and admired the homes along the Bay of Naples. He modeled Osborne on the Italian Renaissance palazzos he had seen during his travels — a touch of Tuscany by The Solent (the strait of the English Channel between the mainland coast of the county of Hampshire, England and the northwestern coast of the Isle of Wight.) The Isle of Wight means raised island or place of division.

As you walk to the front of the house, the honey-coloured stone façade looks very similar to the one in the painting above.

Photo credit: Kitt Garrett, Osborne House front door to the left of the tower, under the Portland stone porte-cochère.

Photo credit: Kitt Garrett, Osborne House front door to the left of the tower, under the Portland stone porte-cochère.

Albert insisted on practical solutions that would still reflect his vision ensuring the house matched his design preferences while avoiding excessive strain on their own funds.

By balancing style with economy, the construction included several cost-saving measures without compromising Albert’s chosen features.

By the 20th century, new features were added to make parts of Osborne more accessible — a reminder that even royal retreats need a little updating now and then.

The Façade

Albert wanted his home to echo the golden sandstone villas he admired on the Italian Riviera; however, importing limestone would have been costly and time-consuming.

Thomas Cubitt used locally-made bricks coated in stucco to mimic sandstone, a technique he had successfully implemented in Belgravia.

The switch in techniques cut costs dramatically: limestone could be three to four times more expensive than brick and stucco, not to mention the added price of quarrying, shipping, and employing skilled stonemasons.

Using bricklayers and plasterers meant the work was faster and more economical. Bricks made on the Isle of Wight avoided shipping delays, and stucco was mixed from simple materials.

The result looked like stone, cost far less, and allowed the royal family to move into their new seaside retreat in just two years, from 1845 to 1847.

The only use of real stone on the exterior is the porte-cochère, built of Portland stone, where guests stepped down from their carriages to enter the house.

Decorative Columns

Looking at the Drawing Room columns that separate the room into functional zones, they appear to be marble. In fact, they are faux marble, a painted technique known as scagliola (pronounced "ska-LYOH-luh" in American English and "skal-YOH-luh" in British English, with the emphasis on the second syllable). This technique makes plaster look like marble. It was invented in Italy in the 1600s and became popular in grand houses and churches across Europe.

The process used powdered stone mixed with glue and colour pigments, which was spread onto surfaces and polished to shine like real marble. It allowed technically skilled artisans to create something beautiful and was much less expensive than the cost to quarry marble, and easier to work with than real stone but gave the same luxurious effect.

In Britain, especially during the Georgian and Victorian periods, scagliola was often used for columns, fireplaces, and wall panels to create the look of marble at a fraction of the cost.

Additional savings came from eliminating the deep foundation needed to support heavy marble columns, and the cost of purchasing and transporting the marble plus the installation. The columns continue in the Billard Room as you walk to the end of the room on your left.

Photo credit: English Heritage, Osborn House, Drawing Room.

Photo credit: English Heritage, Osborn House, Drawing Room.

Photo credit: Kitt Garrett, English Heritage, Osborne House, Drawing Room, Piano Tulipwood, gilt bronze, porcelain, steel, ivory | 97.7 x 143.0 x 247.0 cm (whole object) | RCIN 41322

Photo credit: Kitt Garrett, English Heritage, Osborne House, Drawing Room, Piano Tulipwood, gilt bronze, porcelain, steel, ivory | 97.7 x 143.0 x 247.0 cm (whole object) | RCIN 41322

Both Albert and Victoria enjoyed playing the piano, including duets together. Albert designed the piano at the far end of the Drawing room which was made by Erard and included Tulipwood, gilt bronze, porcelain, steel, ivory.

Photo credit: Kitt Garrett, English Heritage, Billard Room.

Photo credit: Kitt Garrett, English Heritage, Billard Room.

The Billiard Room

The billard room was specifically situated at a right angle from the drawing room, so the men would be out of the direct sight of the queen and therefore could use the long bench to sit.

The slate billard table was designed by Albert and built by Magnus & Sons to look like marble. The cover exposing a painted corner and leg was designed to look like marble. In fact, it was made from rosewood, slate, brass, baize, a coarse woollen cloth, similar in texture to felt, but more durable.

A standard Victorian billiard table stood about 84 centimetres high (roughly 33 inches), but Queen Victoria was only 4 feet 11 inches tall.

To accommodate her height, her billiard table was specially raised to around 90.5 centimetres (or 35 inches), making it easier for her to play comfortably without having to lean awkwardly over the table.

Her journals describe how she learned to play and enjoyed games with her household after lunch.

It’s a lovely reminder that this table was truly fit for a queen.

Photo credit: English Heritage, Osborne House, The Council Room.

Photo credit: English Heritage, Osborne House, The Council Room.

The Shared Sitting Room

Queen Victoria and Prince Albert shared a sitting room working side by side on the dispath-boxes here, delivered by the Queen's messengers which arrived daily from London.

The size is intimate relative to the royal palaces and the two of them worked together in this functional, yet elegant space, running the vast British Empire at the time. It was large enough for audiences with ministers and visitors to feel comfortable.

The two side-by-side mahogany writing desks, appear to be matching.

However, look closely so you can see the drawers are a bit narrower on Prince Albert’s desk on the right to allow for his long legs to fit comfortably underneath.

On the desk on the left, three white buttons are still in place on Queen Victoria’s desk, while those on Prince Albert’s desk have been removed.

Two of Victoria’s buttons are labeled “Wardrobe” for her wardrobe maid and “Page”, a personal messenger, but the third is unmarked. Staff refer to the blank button as the “Gin and Tonic” button for fun.

 

 

Photo credit: Kitt Garrett, English Heritage, Osborne House, Audience Room.

Photo credit: Kitt Garrett, English Heritage, Osborne House, Audience Room.

Prince Albert’s Bathroom

Prince Albert’s bathtub remains a curiosity for visitors who have asked staff: “What is a freezer doing here?” And “What is a beer cooler doing here?” 

Technically ahead of his time, Prince Albert installed a bathroom at Osborne House equipped with built-in- plumbing with a polished mahogany top, a flushing lavatory, shower, and even underfloor heating.

Photo credit: Kitt Garrett, English Heritage, Osborne House, Prince Albert's bathtub.

Photo credit: Kitt Garrett, English Heritage, Osborne House, Prince Albert's bathtub.

To the left of the hall door to the bathroom, a bust of Jupiter looks down.

On the opposite wall from the tub , you'll see a fresco of Hercules and Omphale which adds another classical touch, reflecting the Prince's eye for art as well as innovation. His bath was filled with hot water by the staff at night.

After Albert died, to keep his memory alive and feeling close to him, Victoria had her staff fill his bathtub every night. It was part of the household routine he had insisted upon in life — bathing daily in one of the most modern bathrooms in Britain.

Victoria could not bring herself to end the practice. For her, the sound of water running into his bath symbolised a life that felt as if it he had only just left the house.

Photo credit: Kitt Garrett, English Heritage, Osborne House, Print Albert's bathroom fresco.

Photo credit: Kitt Garrett, English Heritage, Osborne House, Print Albert's bathroom fresco.

The Royal Bedroom

It is one of the most historically significant rooms in the residence. Designed as part of their private apartments, it reflects the couple’s personal taste.

The room is furnished in a relatively simple but elegant style, with light-coloured walls, floral patterns, and furniture that balances comfort with refinement. Unlike the grandeur of the state rooms, the bedroom emphasizes privacy and family life—central to Victoria and Albert’s vision of Osborne as a retreat from London.

After Prince Albert’s death in 1861, Queen Victoria preserved the room much as it had been, keeping it as a memorial to her late husband. She continued to use Osborne House extensively in her later years, and the bedroom became a moving reminder of their partnership.

They had a very close relationship, and adored being together in bed. Wanting complete privacy, Albert had a special lock installed so he could secure the door to the hallway without ever leaving his bed.

Photo credit: Kitt Garrett, English Heritage, Osborne House, the Queen's bedroom.

Photo credit: Kitt Garrett, English Heritage, Osborne House, the Queen's bedroom.

Dr. Warleigh-Lack added on the podcast: "After Albert died, she commissioned a portrait of him, and it hangs on the headboard of her bed."

Look closely on the left side of the headboard and you will see a small green satin bag.

Dr. Warleigh-Lack continued, "After Albert died, Victoria placed his pocket watch in the bag each night so she could hear the tickeing of his watch."

Photo credit: Royal Collection, Osborne House, Gold Case Watch Made for Prince Albert, 1859 Aubert & Klaftenberger Switzerland The Royal Collection.

Photo credit: Royal Collection, Osborne House, Gold Case Watch Made for Prince Albert, 1859 Aubert & Klaftenberger Switzerland The Royal Collection.

Photo credit: Royal Collection, Osborne House, inside case of Prince Albert’s 1859 birthday pocket watch, engraved “To Dearest Albert, from his ever devoted Victoria R, Aug 26th 1859.” The watch is catalogued by the Royal Collection Trust as an Aubert & Klaftenberger piece.

Photo credit: Royal Collection, Osborne House, inside case of Prince Albert’s 1859 birthday pocket watch, engraved “To Dearest Albert, from his ever devoted Victoria R, Aug 26th 1859.” The watch is catalogued by the Royal Collection Trust as an Aubert & Klaftenberger piece.

Photo credit: Kitt Garrett, English Heritage, Osborne House, the Queen's headboard.

Photo credit: Kitt Garrett, English Heritage, Osborne House, the Queen's headboard.

Photo credit: Historic Royal Palaces, Victoria's childhood bedroom, Kensington Palace.

Photo credit: Historic Royal Palaces, Victoria's childhood bedroom, Kensington Palace.

Growing Up in Kensington Palace

Queen Victoria’s father died when she was five. She shared a bedroom with her mother, the Duchess of Kent, at Kensington Palace until she was 18 years old — the very morning she became queen.

This was part of the strict “Kensington System” devised by her mother, the Duchess of Kent and Sir John Ponsonby Conroy, 1st Baronet, and acting comptroller to keep constant supervision and control. Victoria later described it as stifling, saying she was “never alone, not even for a minute.”

When her uncle King William IV died on 20 June 1837, the 18-year-old Victoria was awoken at Kensington Palace to be told she was queen since the King did not have an heir. From that day she finally had her own space and independence. 

Room guide, Vicky Taylor described Victoria’s mother as today’s helicopter parent.

Queen Victoria's Death Creates New Traditions

Taylor continued: "There are lots of stories, but when Victoria died, she had been queen for about 63 years, and so there was nobody to really ask: ‘What do we do?’

"So, it was very frantic here, with telegraphs going backwards and forwards to London. Organizing her coffin to be brought down, which ended up hunting somebody local to create one for her. 

“There were all sorts of protocols that they hadn't thought of and didn't realize that she didn't want to be on display in London. She just wanted to be downstairs in a coffin here, and she just had her staff and her family, to pay their respects.

“But before she died, she lay in a day bed brought near the window so she could look out from the bed for three or four days. 

“And she had specifically asked not to have a death mask, which is why there's a watercolour painting. which had been made from photographs.”

Taylor continued, “But she also had said she didn't want to be embalmed. It was January, so it was quite difficult, but they had huge number of flowers, and even down the stairs."

Her coffin was placed in the dining room with four guards, one at each corner. It started the tradition of the changing of the guard around the coffin. Because she refused to be embalmed, the four guards around her were allowed to change every 15 minutes because the smell was overwhelming, even with the masses of flowers.

Photo credit: Kitt Garrett, English Heritage, Osborne House Queen Victoria's coffin with four guards.

Photo credit: Kitt Garrett, English Heritage, Osborne House Queen Victoria's coffin with four guards.

Photo credit: English Heritage, Queen Victoria's funeral cortege.

Photo credit: English Heritage, Queen Victoria's funeral cortege.

Taylor explained when she was taken through the streets of London she was on a gun carriage, pulled by horses. The horses found it difficult getting up the hills, and a couple of the horses tried to bolt.

The situation was frantic, and the tradition now is anybody who is having a royal funeral will be on a gun carriage, however, they're only pulled by Royal Navy sailors and never horses.

Since then, sailors—about 98 pulling and 40 steadying behind—have drawn the carriage in every major state and royal funeral.

Taylor added: So, all sorts of traditions have come out of Victoria's death. As soon as anybody ascends the throne now, the first thing that's organized is their funeral.

Victoria is buried in Frogmore, with Albert. Her mother died the same year that Albert died.

They are burried at the Royal Mausoleum at Frogmore.

Photo credit: The Royal Household © Crown Copyright

Photo credit: The Royal Household © Crown Copyright

Photo credit: English Heritage, Royal Collection, Heinrich von Angeli (1840-1925), The Munshi Abdul Karim (1863-1909) Signed and dated 1890, Durbar Corridor, Osborne House

Photo credit: English Heritage, Royal Collection, Heinrich von Angeli (1840-1925), The Munshi Abdul Karim (1863-1909) Signed and dated 1890, Durbar Corridor, Osborne House

Durbar Corridor

Walk along the Durbar Corridor, which leads into the grand Durbar Room beyond. The corridor is lined with portraits that reflect Queen Victoria’s deep fascination with India, especially after the title Empress of India was conferred upon her in 1876.

Many of these portraits were painted by the Austrian artist Rudolf Swoboda. In 1886, Victoria sent him to India with a very specific mission to show the diversity of India: to paint people from different regions, faiths, and communities. He returned with about forty works, an extraordinary snapshot of the diversity of India at that time.

The most famous person is Abdul Karim, her Indian attendant who became her teacher, or Munshi, in Urdu. Their close relationship stirred controversy at court but fascinated Victoria—so much so that his portrait has pride of place here. If you saw the movie, Victoria and Abdul, made in 2017, this is the person who was so instrumental to her life.

The Durbar Room

Completed in 1892, this was Queen Victoria’s great banqueting hall designed by Bhai Ram Singh and John Lockwood Kipling, Rudyard Kipling’s father.

Stepping into the Durbar Room is like walking into a confectionary store with white icing on the walls and ceilings.

It's so fresh and clean, you wonder if the pastry chef just left with his piping bag having created this amazing result.

In fact, one of the room attendants walked up to a little girl of about nine years old, and explained that the walls were not made from ice cream just as she was about to lick it.

So, it’s not ice cream, it's not whipped cream, and it’s not ivory. It’s plasterwork and wood inspired by the palaces of India—every inch of the walls and ceiling reflect the handcraftsmanship of intricate detail.

The room attendant explained, “It’s all decorative plaster work, called Canton Pierre plaster, but it's meant to give the impression of ivory.

"That's sort of the number one big thing that people wonder when they walk into the room.”

He added: “Many people often wonder what region of India does it represent? It's mostly a mixture. If we went to Northern India, it's mostly Islamic themed.

"Southern India would have a classically Hindu theme with Hindu goddesses going around the room, whereas here, because Victoria was entertaining so many guests from the Indians subcontinent, the idea was to have a balance.”

Remember, Osborne was first and foremost a family home. Adding this wing created a grand setting for state banquets and receptions, giving visiting royalty and dignitaries a space separate from the family’s own dining room.

Guests included European royalty, visiting heads of state, and important dignitaries. The room could accommodate more than one hundred diners at a single banquet.

Dr. Warleigh-Lack dissuced the history of curry on a recent podcast with Amy Matthews from English Heritage: "Queen Victoria also used this room for large family gatherings, such as Christmas. The table would have been laid out with gifts for her and her children.

"The carpet was woven by the female prisoners from the prison in Agra.

Photo credit: Kitt Garrett, English Heritage, Osborne House, Dubar Room.

Photo credit: Kitt Garrett, English Heritage, Osborne House, Dubar Room.

"The term Durbar comes from the Persian word for court, and it refers to both royal ceremonies and the space in which they happen."

To honour both Islamic and Hindu traditions, the wallpaper blends key motifs.

Islamic artists typically avoid human figures, favouring calligraphy, geometry, and arabesques—interlocking geometry and vine-like scrolls.

Hindu and Jain use naturalistic flora and fauna. The result is a single decorative scheme where two traditions are combined and form one decorative piece honouring both religions.

Photo credit: Kitt Garrett, English Heritage, Osborne House, Durbar Room wallpaper.

Photo credit: Kitt Garrett, English Heritage, Osborne House, Durbar Room wallpaper.

Now pause at the fireplace. Look closely at the plaster peacock, a sacred animal in Hinduism.

It wasn’t carved from stone but modelled in wet plaster by a team of 26 craftsmen from Jackson & Sons of London. Started by George Jackson, the company had worked on Buckingham Palace and Royal Pavilion, Brighton, so it was logical that they would work on this magnificent space.

The peacock alone took over 500 hours of work to complete, with every feather and flourish shaped by hand, then finished in white and gold to glitter in the lamplight.

Imagine this room during a state banquet: incense drifting from urns by the fireplace, Indian musicians playing sitars and flutes from the gallery above, and chefs serving authentic Indian dishes, some made with spices grown here in Osborne’s gardens.

Photo credit: Kitt Garrett, English Heritage, Osborne House, Durbar Room, hand crafted plaster peacock above the fireplace.

Photo credit: Kitt Garrett, English Heritage, Osborne House, Durbar Room, hand crafted plaster peacock above the fireplace.

Now, what's on the menu as you attend a major event in this room?

An example of a menu from Saturday, 6th February 1897 is on the dining table so you can feel as if you are a guest for the evening.

The rule was strict: The servers were instructed to remove the plate as soon as the Queen had finished the course, and she ate very quickly.

If you were not finished, your plate was gone, and you moved on to the next course to keep up with her whether you were finished or not.

The Queen’s guests were just as impressive—Tsar Nicholas II of Russia, Kaiser Wilhelm II of Germany, her own grandson, and even the King of Siam, today’s Thailand. These were not casual dinners.

With the plaster peacock watching over the hall, Victoria created a space that blended Indian art, music, and food with all the pomp of a royal state banquet—her way of showing the world if she couldn't go to India, she would bring India to England as "Empress of India."

Photo credit: Kitt Garrett, English Heritage, Osborne House, Durbar Room menu, Saturday, 6th of February 1897.

Photo credit: Kitt Garrett, English Heritage, Osborne House, Durbar Room menu, Saturday, 6th of February 1897.

Family Life

Queen Victoria was 20 years old when she had her first child, also named Victoria, born in 1840. She was 37 years old when she had her last child, Beatrice, born in 1857.

She spend 17 years pregnant and delivering nine children. Victoria was fond of children when they were three years old, and would then invite them to join her for breakfast, which was usally set in a tent outside in summer.

By the time the children turned 14, they were allowed to join their parents for lunch.

Photo credit: English Heritage.

Photo credit: English Heritage.

To teach practical skills to their nine children, Victoria and Albert built a miniature Swiss chalet in the gardens. Here the young princes and princesses could play at a little theatre, and learn lifelong skills including cooking, gardening, and even accounting.

Each child had an identical plot to grow flowers, fruit and vegetables and sold them to their father, Prince Albert. He paid them fair prices to teach them lessons about business, money, and responsibility.

Photo credit: English Heritage Swiss Cottage and the children's garden.

Photo credit: English Heritage Swiss Cottage and the children's garden.

Photo credit: Kitt Garrett, English Heritage, Osborne House, Museum.

Photo credit: Kitt Garrett, English Heritage, Osborne House, Museum.

Walk into the separate, small museum Albert built for the children to learn about the world by viewing the gifts and collectables the family acquired. It's an astonishing arrary of artifacts.

Photo credit: English Heritage, Queen Victoria's wheeled bathing machine was designed to protect her privacy.

Photo credit: English Heritage, Queen Victoria's wheeled bathing machine was designed to protect her privacy.

The Seaside

Part of the charm of the estate is to stroll on the path from the house through the woods until you reach the sea.

In Victoria’s time, between the 1840s–1890’s, swimming was all about modesty. Her bathing outfit was a dress with bloomers, often weighted so the fabric wouldn’t float up in the water. Some costumes used nearly nine yards of fabric. They were usually made of wool or flannel, which made swimming quite difficult and took a long time to dry.

To protect her privacy, Queen Victoria used a special bathing machine—a wooden hut on wheels that rolled straight into the sea. From inside, she could step directly into the water, hidden from view. Hers was especially ornate, complete with a veranda and curtains.

The Children Grow Up and Marry

Queen Victoria was known as the "grandmother of Europe" through the marriages of her nine children into European royal families. Her eldest daughter, Victoria, married the Crown Prince of Prussia in 1858. Her eldest son, Edward (later Edward VII), married Princess Alexandra of Denmark in 1863. Other children also married into royal lines such as her second daughter, Alice, who married the Grand Duke of Hesse.


Photo credit: The Royal Parks, The Great Exhibition of the Works of Industry of All Nations, also known as the Great Exhibition or the Crystal Palace Exhibition, was an international exhibition that took place in Hyde Park, London, from 1 May to 15 October 1851.

Photo credit: The Royal Parks, The Great Exhibition of the Works of Industry of All Nations, also known as the Great Exhibition or the Crystal Palace Exhibition, was an international exhibition that took place in Hyde Park, London, from 1 May to 15 October 1851.


Prince Albert is best known for the Great Exhibition of 1851, which showcased Britain’s industry. The profits funded South Kensington museums such as the Victoria & Albert Museum, the Science Museum, the Natural History Museum. He helped design Osborne House, Balmoral Castle, and modernized royal residences. He supported education, factory reform, sanitation, and science.

Photo credit: English Heritage, Myrtle growing in the walled garden.

Photo credit: English Heritage, Myrtle growing in the walled garden.

Photo credit: English Heritage, Myrtle in bloom.

Photo credit: English Heritage, Myrtle in bloom.

When Queen Victoria married Prince Albert, Victoria carried a sprig of myrtle from a bush given to her by her German grandmother, Augusta of Saxe-Gotha. That bush was planted in the gardens at Osborne House.

It flourished, and ever since, sprigs of myrtle from this same plant have been included in the wedding bouquets of many royal brides including:

*Queen Elizabeth (later the Queen Mother) – 1923, when she married the future George VI.
*Princess Elizabeth (later *Queen Elizabeth II) – 1947, when she married Prince Philip.
*Princess Margaret – 1960, when she married Antony Armstrong-Jones.
*Princess Anne – 1973, when she married Mark Phillips.
*Princess Diana (Lady Diana Spencer) – 1981, when she married Prince Charles.*
*Sarah Ferguson – 1986, when she married Prince Andrew.
*Sophie Rhys-Jones – 1999, when she married Prince Edward.
*Catherine Middleton (Kate) – 2011, when she married Prince William.
*Meghan Markle – 2018, when she married Prince Harry.
*Princess Eugenie – 2018, when she married Jack Brooksbank.
*Princess Beatrice – 2020, when she married Edoardo Mapelli Moz

According to English Heritage, "The custom of displaying Christmas trees was introduced to Britain in the late 18th century by Queen Charlotte, consort of George III, although it was a yew tree rather than a fir that was used.

"The Christmas tree was popularised by Queen Victoria and Prince Albert in the 19th century, with images of their family gathering around the Christmas tree being published in the Illustrated London News in 1848."

To experience how this amazing couple designed and lived in this private home, visit Osborne House.

English Heritage
cares for more than 400 historic monuments, buildings, and places across England, offering unlimited access to these sites for its members. Osborne House is the third most popular site, after Stonehenge and Tintagle Castle.

Photo credit: Illustrated London 1848.

Photo credit: Illustrated London 1848.